Remodel in the cards for Si View; North Bend’s community center adding classrooms, safety and storage
Published 1:42 pm Tuesday, December 9, 2014
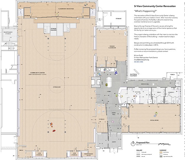
Si View Community Center staff is planning a remodel that will increase not only the lifespan of the 76-year-old landmark building, but also the amount of useable space inside it. The project goals include replacing the flooring in the gym and lobby, adding storage and classroom space, and many safety improvements, but no changes to the building’s current footprint.
Instead, the existing space will be reconfigured, interior walls moved, and room dividers added in the gym and stage areas to allow the already-full building some flexibility in its programming.
“We’re busting the seams,” says Si View Director Travis Stombaugh, but that’s nothing new. The district has already expanded into Meadowbrook Farm, the Mount Si Senior Center and area schools with some programming—they run both adult and youth recreation programs, including basketball, dance, and after-school activities—and recently signed a contract with North Bend for management and program use of the North Bend Railroad Depot.
With only three classrooms in the building, the district is always looking for more room, Stombaugh said, and after the remodel, “we’re really gaining two full programming spaces.”
“We can put more programming in there and we can better facilitate the programming we have,” Stombaugh said. “We can improve the flow of the whole community center.”
Among the most visible changes planned for the project are an art wall in the lobby, new hardwood and slate flooring, and the installation of a gas insert for the building’s stone fireplace.
The building is a King aCounty landmark, and updates to it are governed by the King County Landmark Commission. All materials used have to be true to the time the center was built, in 1938. While the commission OK’ed the remodel in general, it rejected the proposed slate floors in the lobby, and added a condition requiring the district to re-use in the classroom spaces any of the fir flooring to be pulled out of the gym.
That flooring, Stombaugh told the North Bend City Council Dec. 2 in his successful appeal of the landmarks commission decision, can’t really be re-used. It has been worn down so much that the nail heads from its installation are visible, he said.
In its place, the district proposed using third-grade maple, a hardwood with a lower aesthetic value and price, but the same durability as other maple flooring, in the gym and classrooms.
Also, he said, slate was used in buildings of the same era. It hadn’t been used originally in the community center because of the cost.
The newly approved materials will prove more durable than the previous ones, and Stombaugh said they will still give the building the same “log cabin in the Alps” feel it has always had.
Project designs are nearly complete, and, pending final engineer’s estimates this week, Stombaugh hoped the district could advertise for bids later this month. He also hoped the work would take only three months, but said the district has arranged for alternate spaces for its programming for up to six months.
The goal, he said, is “Let’s get this thing done so we don’t have to phase it.”
Only the community center programs will be affected. Other programs, like aquatics, will operate as usual.
“The pool will be open the whole time,” said Stombaugh, except for its annual maintenance days in December.
The total project cost is estimated at $1.7 million, and it will be funded from several sources. A 2010 voter-approved bond for improvements to Tollgate Farm as well as exterior and interior updates at Si View has covered many of the planning and design costs to date, in part because two projects came in under budget in recent years. Si View has applied for a grant from the state’s Heritage Capital Projects Fund, but won’t find out until the next legislative session how much will be awarded. Also, Stombaugh said, “We’ve been saving for this for the last 10 years.”
Any gaps in funding will be privately financed, he added.
Last summer, Si View cut the ribbon on significant park and facilities updates, including new fields, playgrounds and restroom facilities. Improvements are also underway at Tollgate Farm, where parking, a playground and picnic area, and interpretive trail are all planned.
For details on the projects, visit http://www.siviewpark.org/park-improvements.html.
