New Sigillo Cellars building proposed for vacant King Street Lot
Published 11:18 am Wednesday, December 27, 2017
Future development of the King Street lot, located on King Street and Railroad Avenue in downtown Snoqualmie, may become a reality within the next year. Sigillo Cellars, a winery in downtown Snoqualmie, has an option to purchase the lot from the city and is currently working toward completing the second milestone toward purchasing the property.
Sigillo Cellars, co-owned by husband and wife Mike and Candy Seal, their son Ryan Seal and friend Scott Hussey, began discussion with the city in August 2016. Mike Seal, along with a representative from SkB Architects in Seattle, presented their concept for a winery and hotel for the King Street lot at the Oct. 23 Snoqualmie City Council meeting.
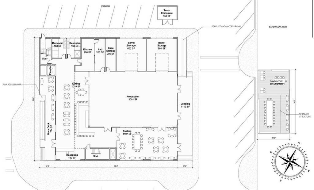
The concept presentation and the council’s subsequent approval of the winery’s direction and intent was the first milestone toward the purchase. The concept outlined an approximately 25,000 square-foot, two-story building with a restaurant and wine production facility on the first floor and a small hotel space on the second floor.
The concept also shows improvements to the sidewalks and a deck overlooking Sandy Cove Park. Seal said they intend to build the deck and give it back to the city for public use, as well as making improvements to the park.
Sigillo Cellars started production and bottling for their winery on the corner of Meadowbrook Way SE and Park Street in 2012. In 2014, they opened the tasting room location in the Mignone building on Railroad Avenue. Seal said that now the company is looking to move out of the small, cramped production space on Meadowbrook Way and tie their entire business together in one building.
“It gives us really good production space, adequate barrel rooms, a laboratory for testing and so forth with the wine,” he said.
In addition to the wine production space, the plans also include a restaurant in the front of the building and tasting room along the side. Seal said that because wine production is not a year-round process, the rest of the year, the production space can be rented out for events.
“Wineries don’t use that production space all year long, and we wanted to make it like an urban loft place that could be rented for weddings, special parties, stuff like that,” he said.
Since the council’s unanimous approval, Seal has begun work on a presentation to the city regarding financing, which will allow them to “provide notice and exercise the option to purchase,” said City Attorney Bob Sterbank.
“We have to get a loan in process by a certain date, the intent is to finance it a couple different ways, with some private funding and with a lending institution, probably backed by a (Small Business Association loan),” Seal said. “They just approved the extension for us to get the loan and have it in place by June 30. We hired a local attorney who is helping us with private placement, then once we know the dollar amount of that private placement, we can go to the bank and get the loan in process. If everything went perfect, probably we would start construction in less than a year.”
One concern raised by council members and citizens in October was the city’s downtown parking availability, which the lot has provided for several years. The King Street lot once had a police department on it, but has been used as parking since the building was taken down.
The new winery concept does include designated parking spaces on the side and behind the building along Sandy Cove Park, but the planned spaces don’t equal the total amount of cars that could fit onto that property as it exists today.
In council discussion with Community Development Director Mark Hofman, downtown redevelopment and parking improvement projects were discussed as already being planned for the area, which would open up parking all around the downtown block, not just for the Sigillo Cellars building. The goal of continued downtown redevelopment and the Riverwalk project is to increase foot traffic in the area which would encourage locals and visitors to walk around the downtown area and visit the businesses there.
With plans in place to increase the amount of parking spaces all along the downtown corridor, the council approved the concept.
At the meeting Hofman, explained that once the Sigillo Cellars formally owns the property, they could pursue more detailed designs and then present those to the city for design review.
“At that point they need to meet all the criteria for the historic district, the downtown vision plan, the downtown master plan and all Snoqualmie Municipal Code that applied, including parking,” he said.
Seal said he is looking forward to continuing to be a part of the Snoqualmie community as well as the city’s business community.
“We love the Snoqualmie address, we love the people here,” he said. “We have the opportunity to be here and we want to stay here.”
